Facebook
Twitter
Youtube
Masuk
HOME
EBOOK
GENERAL
BAHAN DAN MATERIAL
BETON
MATERIAL LAIN
MEKANIKA TEKNIK
STRUKTUR
ANALISIS DAN PERANCANGAN
STRUKTUR BETON
BALOK
KOLOM
PELAT
TANGGA
BOX CULVERT
STRUKTUR BAJA
STRUKTUR BAJA RINGAN
STRUKTUR KAYU
BETON PRACETAK
BETON PRATEGANG
GEMPA
FORENSIC ENGINEERING
GEOTEKNIK
MEKANIKA TANAH
PONDASI
PENYELIDIKAN TANAH
PERBAIKAN TANAH
STABILITAS LERENG
STRUKTUR PENAHAN TANAH
GEOTEXTILE
GALIAN DALAM
MORTAR BUSA
GEOLOGI
MANAJEMEN DAN METODE KONSTRUKSI
MANAJEMEN KONSTRUKSI
METODE KONSTRUKSI
PROYEK
K3
TRANSPORTASI
REKAYASA TRANSPORTASI
JALAN
SUMBER DAYA AIR
AIR BAKU
AIR TANAH
HIDROLOGI
HIDRAULIKA
DRAINASE
IRIGASI DAN BANGUNAN AIR
BENDUNG
BENDUNGAN
SABO DAM
RAWA
SUNGAI
BANGUNAN PANTAI
PENGOLAHAN LIMBAH
PENGUKURAN DAN PEMETAAN
EKONOMI TEKNIK
MATERI KHUSUS
BIM
GREEN CONSTRUCTION
JEMBATAN
BANDAR UDARA
PELABUHAN
JALAN REL
TUNNEL
MIKROHIDRO
INOVASI
EBOOK LAINNYA
PERATURAN
PERUNDANGAN KONSTRUKSI
UNDANG-UNDANG
FIDIC
SNI
ACI
AISC
ASTM
ASCE
BRITISH STANDARD
EUROCODE
Other CODE
SOFTWARE
ENGINEERING SPREADSHEET
BETON
GEOTEKNIK
BAJA
JEMBATAN
JALAN
HYDRO
KAYU
CIVIL ENGINEERING PROGRAM
DRAWING & DESAIN
SURVEY DAN PEMETAAN
STRUKTUR
GEOTEKNIK
JALAN & JEMBATAN
FINITE ELEMENT
PENJADWALAN
HYDROLOGY
PLUGIN
AUTOCAD
REVIT
CIVIL 3D
ADVANCED STEEL
ZWCAD
TUTORIAL
DRAWING
AUTOCAD
CIVIL 3D
REVIT
ARCHITECTURE
STRUCTURE
MEP
NAVISWORK
INFRAWORKS
TEKLA STRUCTURES
SKETCHUP
GIS
CIVIL ENGINEERING PROGRAM
SAP
ETABS
SAFE
STAADPRO
MIDAS
PLAXIS
ROBOT STRUCTURAL
MICROSOFT PROJECT
PRIMAVERA
ANSYS
ABAQUS
OTHER
C++
EXCEL
MATLAB
STRUCTURE
DRONE
DRAWING CAD
GAMBAR BANGUNAN
GAMBAR JEMBATAN
GAMBAR LAINNYA
GAMBAR DETAIL
SEMINAR
MEMBERSHIP
Register
Benefit Premium Membership
Guide to Your Premium Membership
Affiliate SIPILPEDIA
Panduan Download File
SEARCH
Masuk
SELAMAT DATANG!
Masuk ke akun Anda
nama pengguna
kata sandi Anda
Lupa kata sandi Anda?
Pemulihan password
Memulihkan kata sandi anda
email Anda
Cari
Minggu, 26 April 2026
Masuk / Bergabung
Masuk
Selamat Datang! Masuk ke akun Anda
nama pengguna
kata sandi Anda
Lupa kata sandi Anda? mendapatkan bantuan
Pemulihan password
Memulihkan kata sandi anda
email Anda
Sebuah kata sandi akan dikirimkan ke email Anda.
Sipilpedia
HOME
EBOOK
GENERAL
BAHAN DAN MATERIAL
BETON
MATERIAL LAIN
MEKANIKA TEKNIK
STRUKTUR
ANALISIS DAN PERANCANGAN
STRUKTUR BETON
BALOK
KOLOM
PELAT
TANGGA
BOX CULVERT
STRUKTUR BAJA
STRUKTUR BAJA RINGAN
STRUKTUR KAYU
BETON PRACETAK
BETON PRATEGANG
GEMPA
FORENSIC ENGINEERING
GEOTEKNIK
MEKANIKA TANAH
PONDASI
PENYELIDIKAN TANAH
PERBAIKAN TANAH
STABILITAS LERENG
STRUKTUR PENAHAN TANAH
GEOTEXTILE
GALIAN DALAM
MORTAR BUSA
GEOLOGI
MANAJEMEN DAN METODE KONSTRUKSI
MANAJEMEN KONSTRUKSI
METODE KONSTRUKSI
PROYEK
K3
TRANSPORTASI
REKAYASA TRANSPORTASI
JALAN
SUMBER DAYA AIR
AIR BAKU
AIR TANAH
HIDROLOGI
HIDRAULIKA
DRAINASE
IRIGASI DAN BANGUNAN AIR
BENDUNG
BENDUNGAN
SABO DAM
RAWA
SUNGAI
BANGUNAN PANTAI
PENGOLAHAN LIMBAH
PENGUKURAN DAN PEMETAAN
EKONOMI TEKNIK
MATERI KHUSUS
BIM
GREEN CONSTRUCTION
JEMBATAN
BANDAR UDARA
PELABUHAN
JALAN REL
TUNNEL
MIKROHIDRO
INOVASI
EBOOK LAINNYA
PERATURAN
PERUNDANGAN KONSTRUKSI
UNDANG-UNDANG
FIDIC
SNI
ACI
AISC
ASTM
ASCE
BRITISH STANDARD
EUROCODE
Other CODE
SOFTWARE
ENGINEERING SPREADSHEET
BETON
GEOTEKNIK
BAJA
JEMBATAN
JALAN
HYDRO
KAYU
CIVIL ENGINEERING PROGRAM
DRAWING & DESAIN
SURVEY DAN PEMETAAN
STRUKTUR
GEOTEKNIK
JALAN & JEMBATAN
FINITE ELEMENT
PENJADWALAN
HYDROLOGY
PLUGIN
AUTOCAD
REVIT
CIVIL 3D
ADVANCED STEEL
ZWCAD
TUTORIAL
DRAWING
AUTOCAD
CIVIL 3D
REVIT
ARCHITECTURE
STRUCTURE
MEP
NAVISWORK
INFRAWORKS
TEKLA STRUCTURES
SKETCHUP
GIS
CIVIL ENGINEERING PROGRAM
SAP
ETABS
SAFE
STAADPRO
MIDAS
PLAXIS
ROBOT STRUCTURAL
MICROSOFT PROJECT
PRIMAVERA
ANSYS
ABAQUS
OTHER
C++
EXCEL
MATLAB
STRUCTURE
DRONE
DRAWING CAD
GAMBAR BANGUNAN
GAMBAR JEMBATAN
GAMBAR LAINNYA
GAMBAR DETAIL
SEMINAR
MEMBERSHIP
Register
Benefit Premium Membership
Guide to Your Premium Membership
Affiliate SIPILPEDIA
Panduan Download File
SEARCH
Beranda
Topik
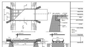
Jembata Beton Bentang 6 meter
Topik: Jembata Beton Bentang 6 meter
Gambar Jembata Beton Bentang 6 meter
sipilpedia
-
10 Agustus 2024
0