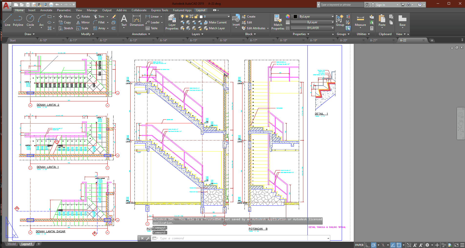
Beranda DRAWING CAD Denah dan Gambar CAD Arsitek Ruko A-22 DRAWING CADGAMBAR BANGUNAN Denah dan Gambar CAD Arsitek Ruko A-22 Penulis sipilpedia - 4 Maret 2025 670 0 FacebookTwitterPinterestWhatsApp Detail Penulis : Penerbit : Bahasa : Indonesia Halaman : 1 File Format : DWG Ukuran : 632 Kb DOWNLOAD Konten berikutnya khusus bagi buyer yang telah membeli Premium Membership Daftar disini