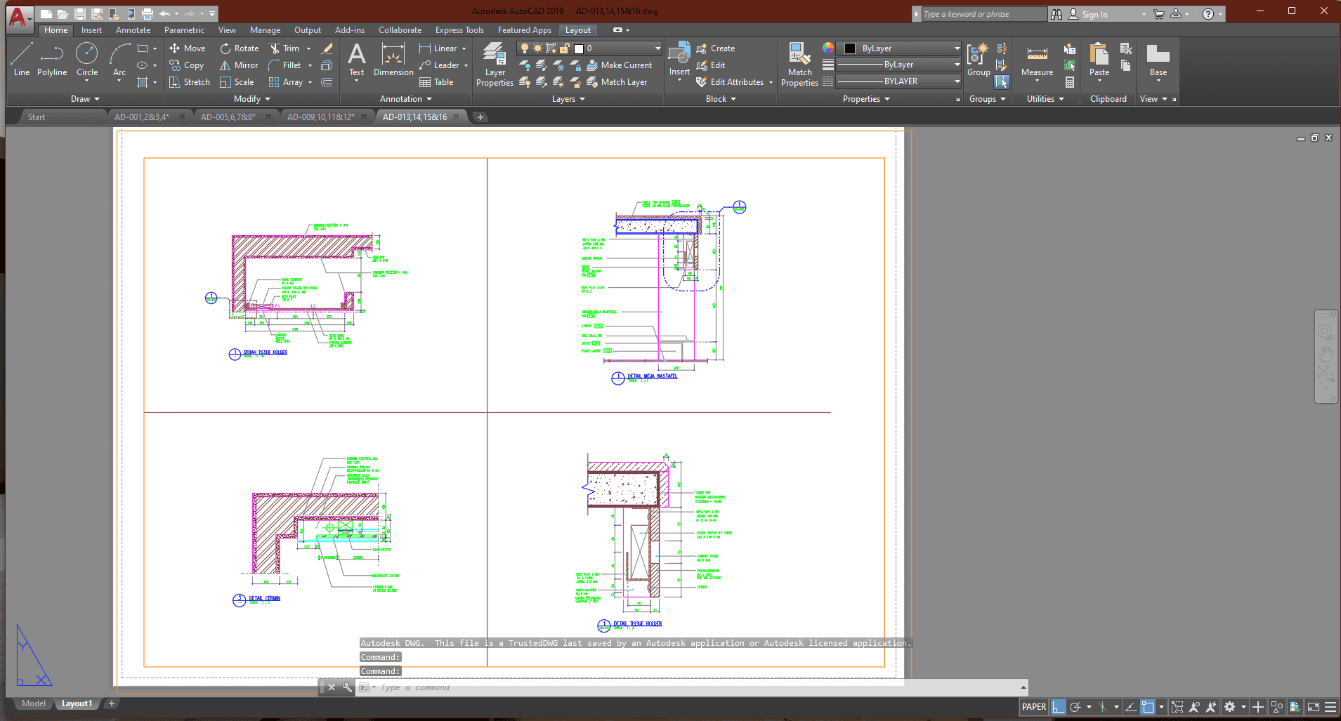
Beranda DRAWING CAD Denah dan Gambar CAD High Building Hotel _Arsitektur Detail AD-013,14,15&16 DRAWING CADGAMBAR DETAIL Denah dan Gambar CAD High Building Hotel _Arsitektur Detail AD-013,14,15&16 Penulis sipilpedia - 27 Mei 2025 583 0 FacebookTwitterPinterestWhatsApp Detail Penulis : Penerbit : Bahasa : Indonesia Halaman : 1 File Format : DWG Ukuran : 0 588 Mb DOWNLOAD Konten berikutnya khusus bagi buyer yang telah membeli Premium Membership Daftar disini