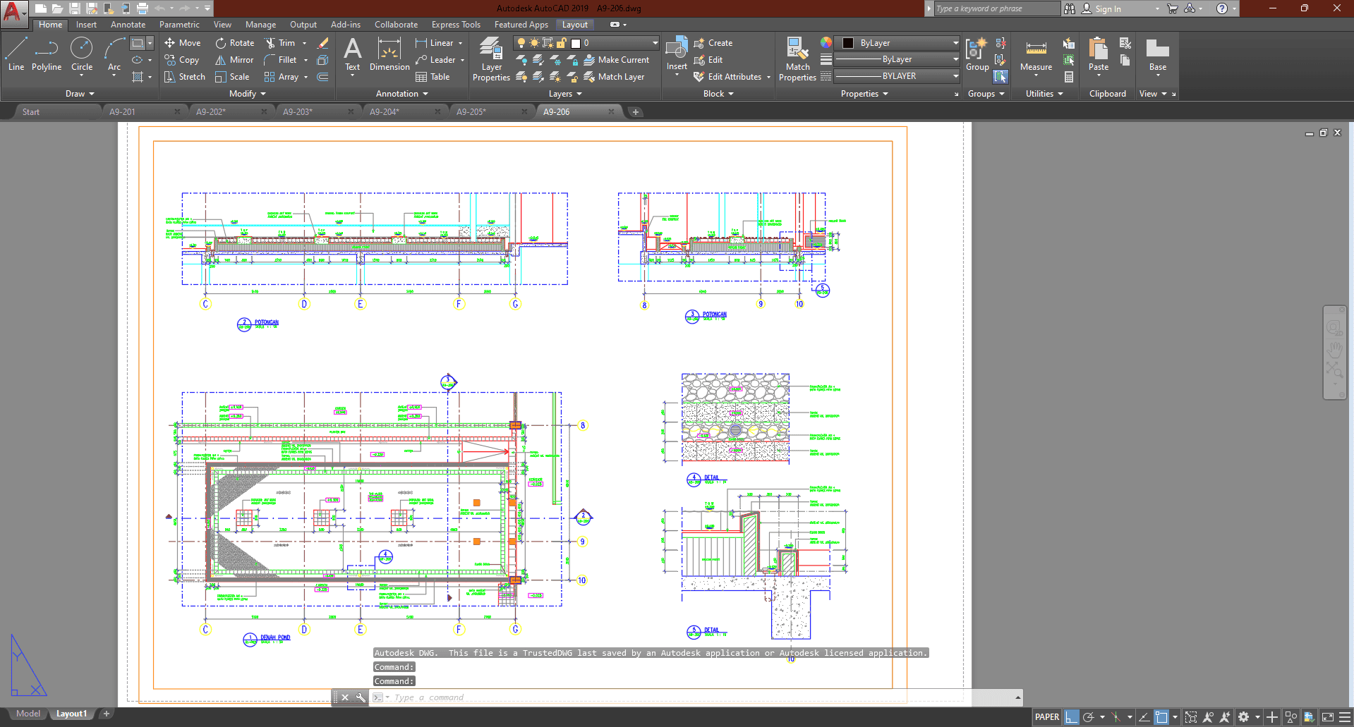
Beranda DRAWING CAD Denah dan Gambar CAD High Building Hotel_Pool A9-206 DRAWING CADGAMBAR DETAIL Denah dan Gambar CAD High Building Hotel_Pool A9-206 Penulis sipilpedia - 29 Mei 2025 563 0 FacebookTwitterPinterestWhatsApp Detail Penulis : Penerbit : Bahasa : Indonesia Halaman : 1 File Format : DWG Ukuran : 0 287 Mb DOWNLOAD Konten berikutnya khusus bagi buyer yang telah membeli Premium Membership Daftar disini