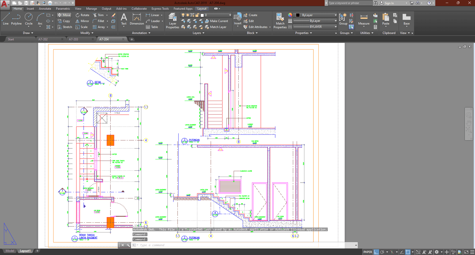
Beranda DRAWING CAD Denah dan Gambar CAD High Building Hotel_Tangga A7-204 DRAWING CADGAMBAR DETAIL Denah dan Gambar CAD High Building Hotel_Tangga A7-204 Penulis sipilpedia - 3 Juni 2025 665 0 FacebookTwitterPinterestWhatsApp Detail Penulis : Penerbit : Bahasa : Indonesia Halaman : 1 File Format : DWG Ukuran : 0 231 Mb DOWNLOAD Konten berikutnya khusus bagi buyer yang telah membeli Premium Membership Daftar disini