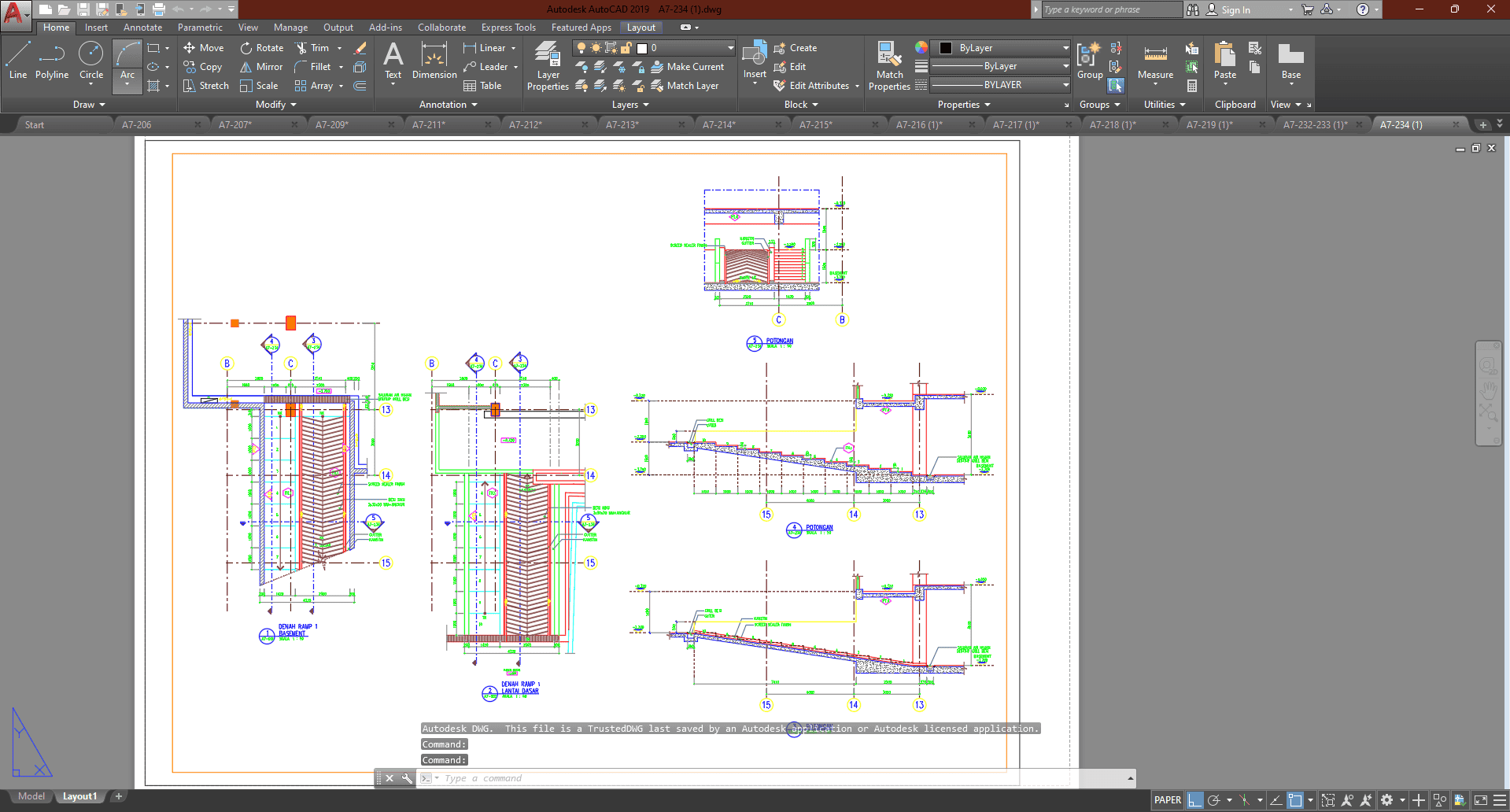
Beranda DRAWING CAD Denah dan Gambar CAD High Building Hotel_Tangga A7-234 DRAWING CADGAMBAR DETAIL Denah dan Gambar CAD High Building Hotel_Tangga A7-234 Penulis sipilpedia - 18 Juni 2025 647 0 FacebookTwitterPinterestWhatsApp Detail Penulis : Penerbit : Bahasa : Indonesia Halaman : 1 File Format : DWG Ukuran : 0 137 Mb DOWNLOAD Konten berikutnya khusus bagi buyer yang telah membeli Premium Membership Daftar disini