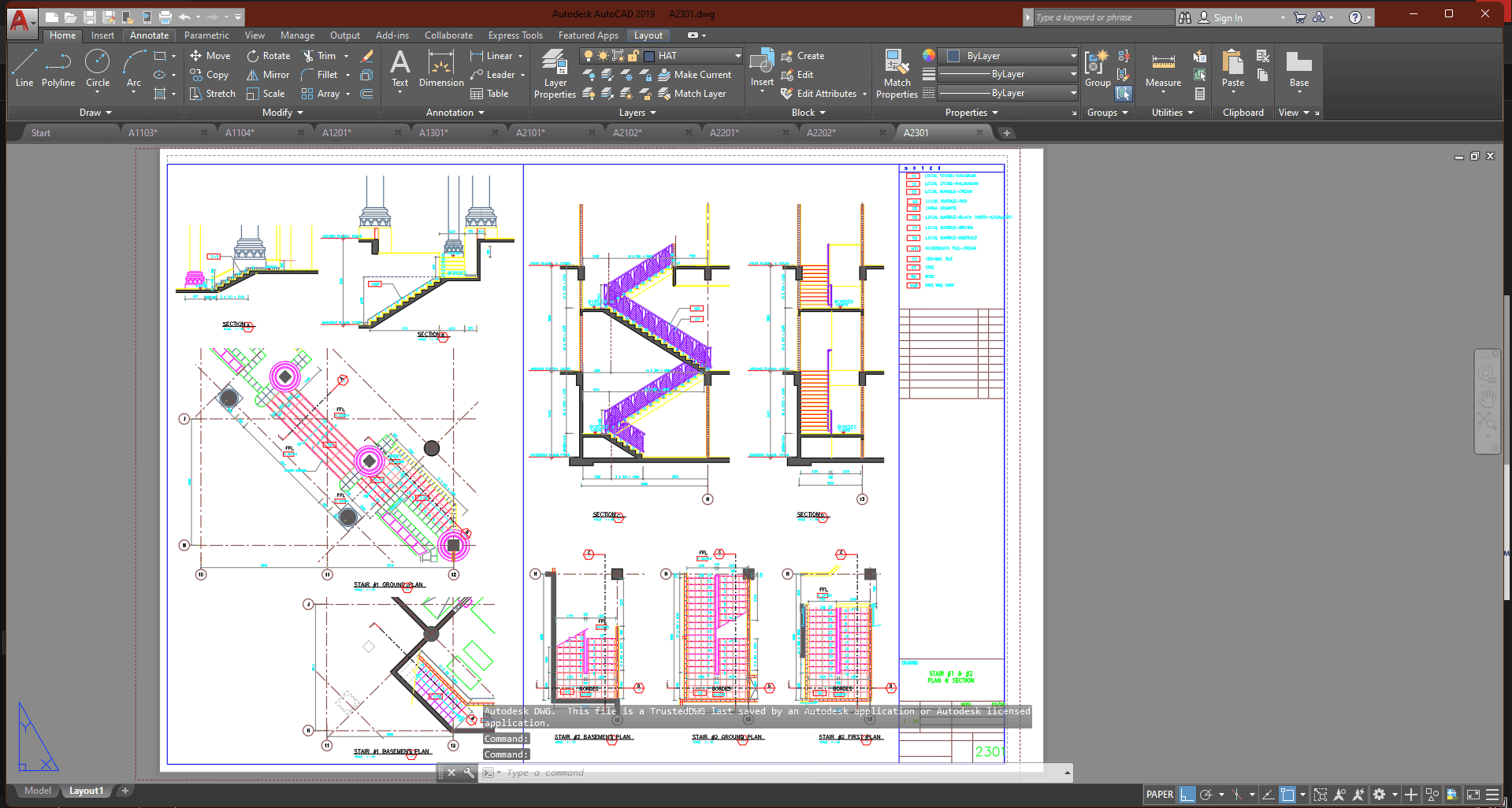
Beranda DRAWING CAD Denah dan Gambar CAD High Building Mall_A2301 DRAWING CADGAMBAR DETAIL Denah dan Gambar CAD High Building Mall_A2301 Penulis sipilpedia - 1 Juli 2025 536 0 FacebookTwitterPinterestWhatsApp Detail Penulis : Penerbit : Bahasa : Indonesia Halaman : 1 File Format : DWG Ukuran : 1 2 Mb DOWNLOAD Konten berikutnya khusus bagi buyer yang telah membeli Premium Membership Daftar disini